-
玻璃铰链门节点图(固定墙面)(横剖)
- 0
- 6.3k
-
地弹簧玻璃门节点图(横剖/竖剖)
- 0
- 2.9k
-
玻璃铰链门节点图(固定玻璃)(横剖/竖剖)
- 0
- 2.2k
-
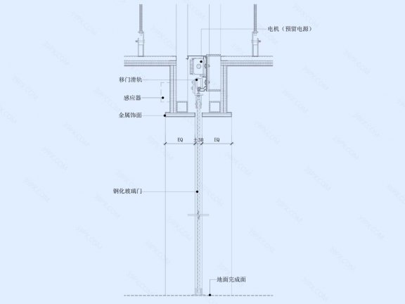
电动玻璃移门节点大样图(横剖/竖剖)
- 0
- 3.8k
幸运之星正在降临...
点击领取今天的签到奖励!
恭喜!您今天获得了{{mission.data.mission.credit}}积分
我的优惠劵
-
¥优惠劵使用时效:无法使用使用时效:
之前
使用时效:永久有效优惠劵ID:×
没有优惠劵可用!


