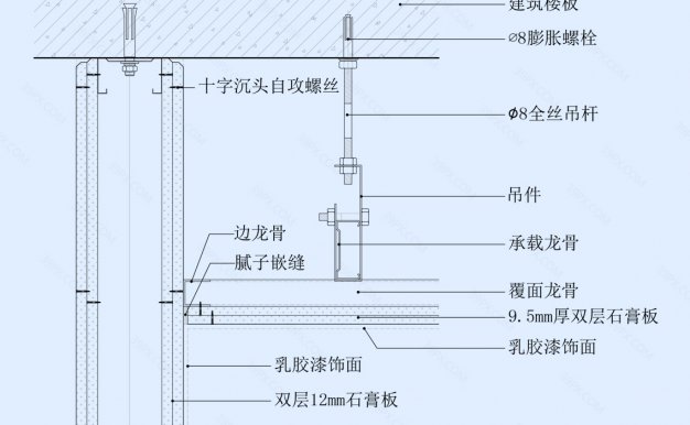
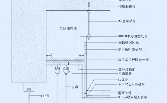
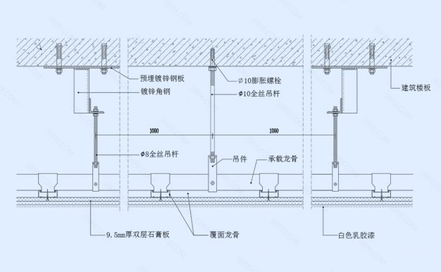
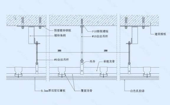
乳胶漆

个人中心
购物车
优惠劵
今日签到
有新私信 私信列表
搜索