-
双轨无机布防火卷帘剖面图(横剖+竖剖)
- 0
- 4.9k
-
单轨钢制防火卷帘剖面图(竖剖+横剖)
- 0
- 4.6k
-
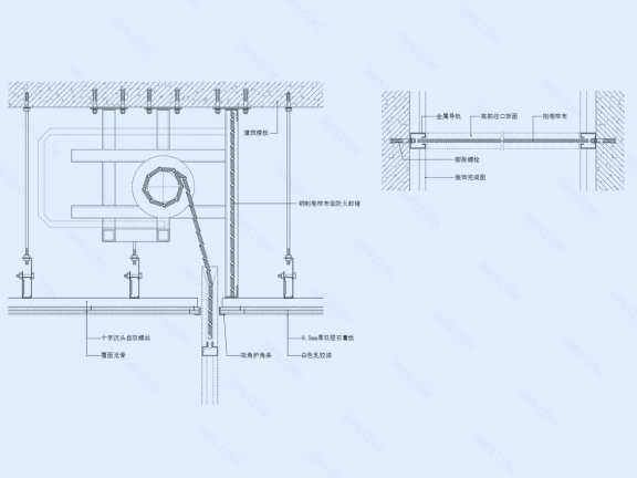
可升降挡烟垂壁天花节点图
- 0
- 3.9k
-
反支撑工艺天花节点图二
- 0
- 5.4k
-
反支撑工艺天花节点图一
- 0
- 10.1k
-
伸缩缝工艺天花节点图(金属条)
- 0
- 5.6k
-
亚克力吊顶天花节点图
- 0
- 6.7k
-
木饰面吊顶天花节点图
- 0
- 18.3k
-
圆形金属格栅天花节点图
- 0
- 6.2k
-
矩形金属格栅天花节点图
- 0
- 6.4k
-
石膏板吊顶节点图(顶面留缝造型)
- 0
- 11.1k
-
石膏板吊顶节点图(灯槽带风口造型)
- 0
- 15.7k
-
石膏板吊顶节点图(弧形石膏线灯槽造型)
- 0
- 6.1k
-
石膏板吊顶节点图(带石膏线灯槽造型)
- 0
- 13.1k
-
石膏板吊顶节点图(常规灯槽造型)
- 0
- 5.5k
-
石膏板吊顶节点图(高低差造型)
- 0
- 5.2k
-
石膏板吊顶节点图(卡式承载龙骨)
- 0
- 4.2k
-
成品检修口天花节点图
- 0
- 22.1k
-
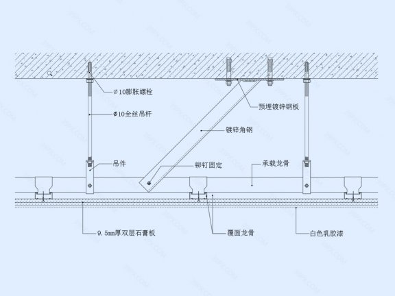
石膏板吊顶节点图(悬挂式)
- 0
- 9.9k
-
石膏板吊顶节点图(贴顶式)
- 0
- 4.8k
幸运之星正在降临...
点击领取今天的签到奖励!
恭喜!您今天获得了{{mission.data.mission.credit}}积分
我的优惠劵
-
¥优惠劵使用时效:无法使用使用时效:
之前
使用时效:永久有效优惠劵ID:×
没有优惠劵可用!


